Espace propriétaire
fr
Se connecter
Se connecter

Votre recherche

Vendu
Massy (91300)

2 pièces - 40,32 m²

2 pièces Quartier Atlantis très récent

Nous consulter
Ref : 651/2020
A propos de ce bien

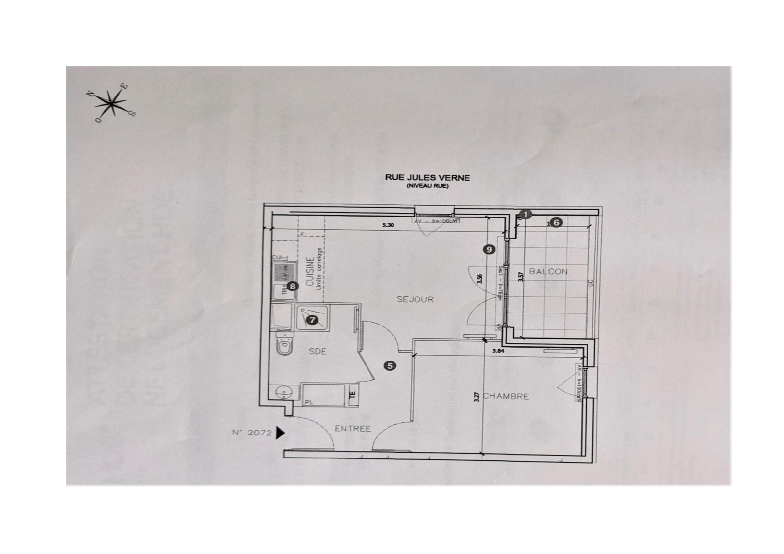
MASSY QUARTIER ATLANTIS - Situé à proximité de la gare TGV et RER, du centre-ville, dans une résidence très récente (construction 2017), Appartement de 2 pièces au 8ème étage avec ascenseur comprenant une entrée avec placard, séjour avec cuisine ouverte, meublée et équipée, balcon (vue dégagée). Une chambre. Salle d'eau avec wc. Parquet massif dans la pièce de vie, la chambre et l'entrée, carrelage dans la cuisine et salle d'eau. Visiophone.Chauffage urbain collectif. Volets roulants manuels.Un emplacement de parking au sous sol complète ce bien. Copropriété de 70 lots principaux. Charges annuelles : environ 1800 euros. Prix : sur demande.


Les informations sur les risques auxquels ce bien est exposé sont disponibles sur le site Géorisques
Descriptif de ce bien
Général
Code postal 91300
Surface loi Carrez (m²) 40,32 m²
Nombre de chambre(s) 1
Nombre de pièces 2
Etage 7
Ascenseur OUI
Vue dégagée
Détails
Nb de salle d'eau 1
Cuisine Américaine
Type de cuisine Equipée
Mode de chauffage Autre
Type de chauffage Radiateur
Format de chauffage Collectif
Visiophone OUI
Balcon OUI
Terrasse NON
Nombre de garage 1
Cave NON
Exposition Sud-Est
Année de construction 2017
Composition
Etage 7
entrée 6.19 m²

séjour cuisine 17.18 m²

chambre 12.28 m²

salle d'eau 4.55 m²

balcon 6.26 m²

Financier
Charges 113 €
Energie
DPE GES
Copropriété
Copropriété OUI
Lot n° 2594
nombre de lots 2
plan de sauvegarde NON
statut du syndic pas de procédure en cours
Contacter pour ce bien
L'agence
Téléphone 01 69 07 59 97
Adresse
2, rue du Général Leclerc 91440 Bures-sur-Yvette

* Champ obligatoire

Les informations recueillies sur ce formulaire sont enregistrées dans un fichier informatisé par La Boite Immo agissant comme Sous-traitant du traitement pour la gestion de la clientèle/prospects de l'Agence / du Réseau qui reste Responsable du Traitement de vos Données personnelles. La base légale du traitement repose sur l'intérêt légitime de l'Agence / du Réseau. Elles sont conservées jusqu'à demande de suppression et sont destinées à l'Agence / au Réseau. Conformément à la loi « informatique et libertés », vous disposez des droits d’accès, de rectification, d’effacement, d’opposition, de limitation et de portabilité de vos données. Vous pouvez retirer votre consentement à tout moment en contactant directement l’Agence / Le Réseau. Consultez le site https://cnil.fr/fr pour plus d’informations sur vos droits. Si vous estimez, après avoir contacté l'Agence / le Réseau, que vos droits « Informatique et Libertés » ne sont pas respectés, vous pouvez adresser une réclamation à la CNIL. Nous vous informons de l’existence de la liste d'opposition au démarchage téléphonique « Bloctel », sur laquelle vous pouvez vous inscrire ici : https://www.bloctel.gouv.fr Dans le cadre de la protection des Données personnelles, nous vous invitons à ne pas inscrire de Données sensibles dans le champ de saisie libre.
Ce site est protégé par reCAPTCHA, les Politiques de Confidentialité et les Conditions d'Utilisation de Google s'appliquent.

Découvrir nos outils